The Stillwater City Council approved a specific use permit Monday for Synthesia Technology to build a chemical manufacturing facility on the north end of the Kingspan Roofing and Waterproofing property at 4115 N. Perkins Road, clearing the way for what the company says will be a more than $100 million, three-phase industrial expansion.
The council voted 5-0 to accept the Planning Commission's unanimous recommendation from March 3, including two conditions: construction of a 6-foot sidewalk along the full length of the Perkins Road frontage and a reduced parking standard tied to employee count rather than building square footage.
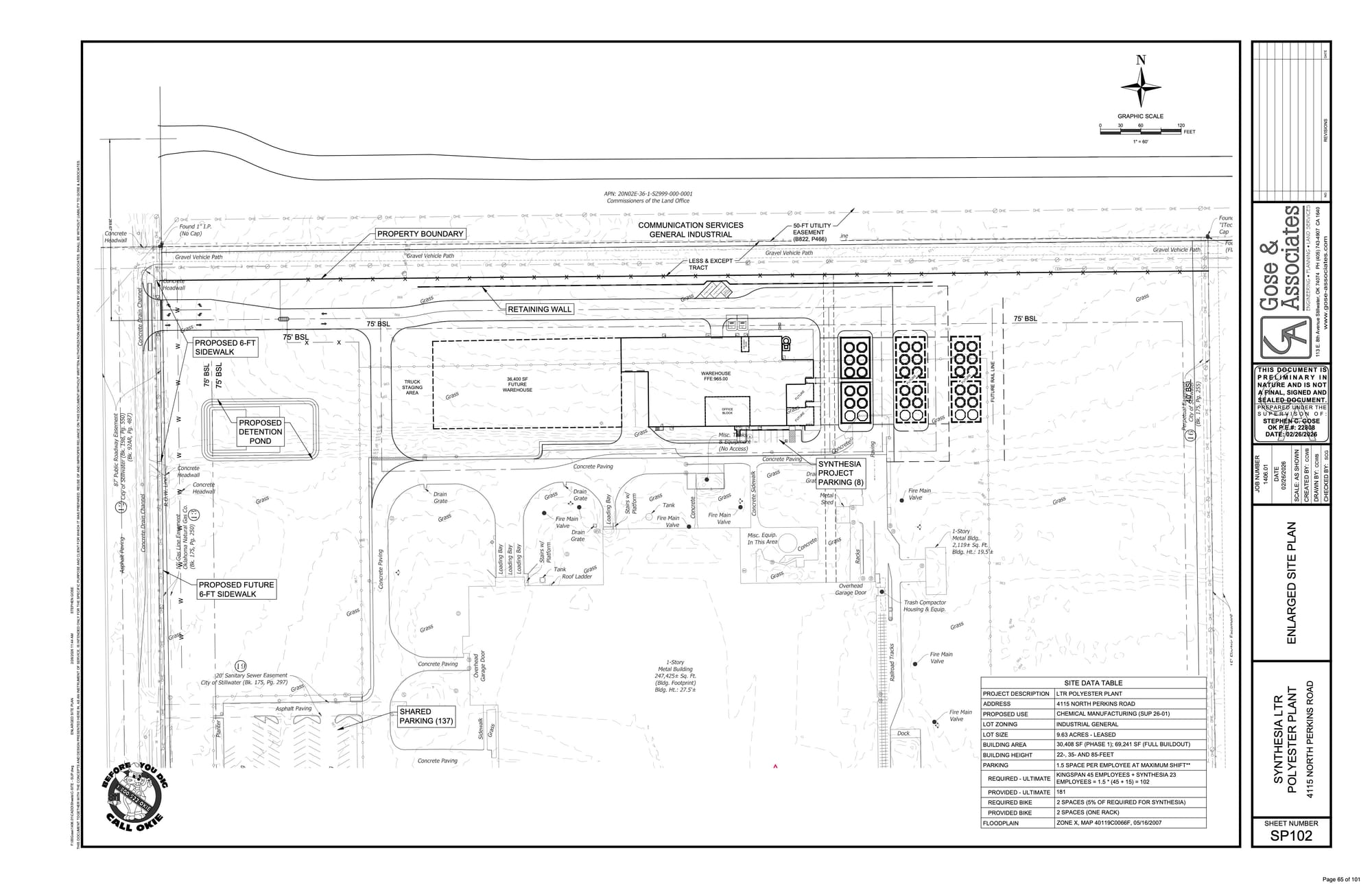
Synthesia Technology and Kingspan Roofing and Waterproofing are sister companies under the same ownership — a relationship central to why the facility is being built in Stillwater. Synthesia produces polyester polyols, a liquid chemical used as a base ingredient in the foam insulation boards Kingspan manufactures. Stephen Gose of Gose & Associates, the engineering firm representing both companies, told the council the co-location will allow the two operations to streamline production and eventually connect the facilities by pipeline.
"Synthesia was founded in 1964," Gose said. "They were purchased by Kingspan in 2018, so Kingspan is the parent company."
The company currently operates three production sites in Spain, France, and Panama and employs more than 300 people worldwide.
The primary raw material for the Stillwater facility will be recycled polyethylene terephthalate, or PET — the plastic used in water bottles and soda bottles. Gose told the council that since 2024, the company has used the equivalent of one billion plastic bottles in its production process.
The manufacturing process, known as glycolysis, heats that recycled plastic to approximately 280 degrees in enclosed reactor towers.
"The off gases are some low-concentration VOCs, and there's water, there's waste that goes through a filter process," Gose said. "The solid waste is all inert material and can go to the landfill. The water that comes off of it is held in tanks on site and taken off site for treatment, so it will not be discharged into the city's system."

Councilor Tim Hardin framed the concerns neighbors most commonly raise about industrial facilities in blunt terms.
"Neighbors usually look at three things: sight, sound, and smell," Hardin said. "You've talked about the sight. So you're going to put a wall around this tower. The sound you've addressed — what about the smell?"
Gose said emissions from the process are expected to be minimal. "They say it smells like just a polyester resin, real low output," he said. Emissions will exit from the tops of the enclosed reactor towers, with all process equipment hidden behind an exterior skin. Hardin confirmed the equipment inside the towers would not be visible, and Gose said the enclosure also serves to suppress noise.
Oklahoma Republican Candidate Showcase
Presented by The Payne County Republican Women's Club
Meet 30+ Republican candidates shaping Oklahoma's future — all in one afternoon.
Republican women candidates will participate in a moderated forum, giving voters a chance to hear directly from those seeking office.
Republican men candidates will be available throughout the afternoon for meet & greets.
The event also features a Dessert Silent Auction, Desserts for Donations, America 250th Merchandise, and a Candidate Straw Poll. Open to all Oklahoma voters.
Saturday, March 28 | 1:30–6 p.m.
Payne County Expo Center | 4518 Expo Cir E, Stillwater
Questions? Email smdmeans@gmail.com or text 918-424-5607.
On sound, the applicant submitted a noise study showing truck traffic — not the manufacturing equipment — will be the loudest noise source on the site. All other identified noise sources, including vacuum pumps, process pumps, air compressors, refrigeration cooling units, and tank farm pumps, fall below measurable levels at the nearest neighborhood boundary.
Councilor Christie Hawkins raised the proximity of a residential neighborhood to the northwest of the property. "When you hear chemical manufacturing, there's residential across the street," Hawkins said, asking whether any environmental study had addressed potential impacts to those residents.

Henry Bibelheimer, the city's senior planner, said notices were sent to property owners within 300 feet of the site, including the nearby homeowners association. No one filed comments in opposition at either the Planning Commission hearing or the City Council meeting. "No, ma'am," Bibelheimer told Hawkins. "And we haven't received any on the staff side either."
Gose said Synthesia is working with an environmental consultant to obtain state air quality and environmental permits. "They don't anticipate having any issues with those," he said, adding that those approvals are required before construction can begin and are separate from the city's zoning action.
The reactor towers are planned to reach 95 feet at full buildout. As context, Gose noted that an existing product tower at the Kingspan facility already stands 103 feet tall. "The mill towers are about 110 feet tall, along with the stair towers at Boone Pickens Stadium," he said. "So just as a point of reference, the reactor towers will be less."

The project will be built in three phases, adding capacity and jobs with each stage. In total, the three phases represent more than $100 million in investment and are projected to create 84 jobs once fully built out. Gose said Lambert Construction was selected last week as general contractor, and earthwork is planned to begin this summer.
"With Phase 1, 90 percent of the output will go to the Kingspan facility here, and a site they have in Little Rock," Gose said. As later phases come online, the facility will ship product to additional Kingspan plants and outside customers.
Truck traffic to the site is expected to stay light — roughly two deliveries per day during the early phases. By the third phase, the companies plan to expand the existing rail line on the Kingspan property to handle the bulk of receiving and shipping, reducing the long-term reliance on semi trucks on Perkins Road.
"Phase 3 requires the rail just to get the production volume they need," Gose said. "So as much of that traffic as possible will go to that."
The council also approved a modified parking standard for the site. Under standard city code, calculating parking based on building square footage would have required 361 spaces combined for Kingspan and Synthesia — roughly twice what the companies say they actually need. The approved alternative ties the requirement to staffing levels instead, resulting in 102 required spaces. The site will have 181 total spaces, giving both facilities room to grow without unnecessary pavement.
The applicant argued the square-footage standard would generate approximately 2.1 acres of additional paved surface that would go unused and require expanded on-site stormwater detention. Bibelheimer said city staff and the Planning Commission both supported the reduction.
Chemical manufacturing is not permitted by right in any of Stillwater's zoning districts and requires a specific use permit in the General Industrial district — the city's highest-intensity zoning classification.
📺 Watch the presentation to CIty Council
