The Stillwater (Re)Investment Plan Implementation Policy Committee has approved a recommendation to allocate an additional $150,000 for small business enhancement projects within Tax Increment Financing District #3.
The committee voted unanimously during its June 9 meeting to replenish the small business enhancement fund, which had dwindled to just $2,687 before the new allocation.
The small business enhancement program provides assistance for exterior improvements to businesses within the TIF district, covering up to 50 percent of actual expenditures to a maximum of $15,000 per project. Funding is provided on a reimbursement basis upon completion of approved projects.

City Manager Brady Moore explained that the small business enhancement category needed additional funding to continue supporting improvement projects throughout the district.
"The small business enhancements are really those exterior improvements that help kind of lift the rise and tide of all the ships," Moore said. "We've seen great improvements."
The funding will come from the project plan's assistance and development financing budget, which currently has a balance of $4.85 million. With the maximum assistance per project set at $15,000, the new $150,000 allocation could support up to 10 additional enhancement projects.
Committee Chair Jeremy Bale noted that while these beautification projects may not directly increase property values, they provide other benefits to the district.
"In my conversations with the community, which is generally just investors, developers, people that are interested in potential projects, these projects, I would argue, are increasing their confidence in doing things," Bale said. "I think that they are significant in helping the mindset of our community."




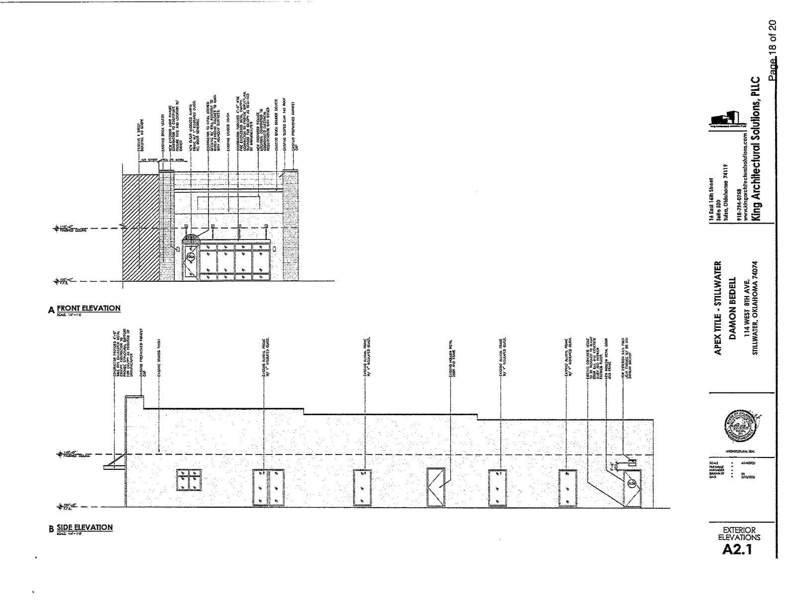
The property at 114 W. 8th Ave. is adjacent to Block 34, which is scheduled to open in late July 2025. Project plans show new windows on the front and side of the building and a new awning. – Photos by Chris Peters
The committee also approved a $15,000 small business enhancement application from Apex Title for exterior improvements to a building at 114 W. 8th Ave.
Project contractor, Paul Cooper, representing Apex Title & Closing Services at the meeting, described plans to transform the storefront with extensive glass windows, new signage, lighting, and other exterior enhancements.
"We're pretty excited to come into Stillwater," Cooper said. "I just love that we're able to be a part of the beautification process. Really love what you guys are doing here in the downtown area, bringing more people in."

The building, which previously housed medical marijuana dispensary Homestead Harvest, will undergo renovations including a new glass storefront with awning, facade repairs, and fresh paint. The total project cost is estimated at $30,370, with the TIF assistance covering nearly half of the expense.
Moore highlighted that the improvements align with the downtown redevelopment plan's emphasis on increasing transparency and visibility for storefronts.
"It increases the transparency on the front of the building, which is what our downtown redevelopment plan specifically said is a key to redevelopment in the downtown area—adding more glass, more visibility into your storefront, as well as new signage, lighting, and those type of things," Moore said.
Cooper explained that Apex Title, which has about 23 locations throughout Oklahoma, focuses on improving the appearance of its buildings.
"One of the things that we couldn't do, this unification of the exterior enhancements, without you guys' help," Cooper said. "So really thankful to be considered for that and excited to be part of it as well."

The committee also discussed plans to update the TIF #3 Implementation Policy Guide to provide more clarity and flexibility for future projects.
Moore reported that he recently met with attorneys from the Center for Economic Development Law in Oklahoma City to begin the process of revising the guide, which has created confusion in the past regarding project eligibility and funding thresholds.
"We realized this needs some cleanup," Moore said. "We are going to go through that process of improving the Implementation Policy Guide to give this committee more clarity."
A message from Visit Stillwater
Summer in America's Friendliest College Town calls for live music, kids' camps, livestock shows, art, and so much more. Check out all there is to see and do in The Original Home of Red Dirt Music this month!
Moore emphasized that while clarity is important, maintaining some flexibility in the guidelines allows the committee to make appropriate decisions based on individual project needs.
"It is good to have some flexibility in your Implementation Policy Guide. It gives you all flexibility to say, this is the percent that needs to be associated with this project," Moore said. "But also you may have a developer that comes in and says, I don't need the max, or I do need the max, and I need it to make this really work."
A subcommittee consisting of Chair Bale and committee member Doug Major will work with staff to draft revisions to the policy guide. Once completed, the draft will be presented to the full committee for review before being sent to the Stillwater Economic Development Authority trustees for approval.
